重要提示: 请勿将账号共享给其他人使用,违者账号将被封禁!
查看《购买须知》>>>
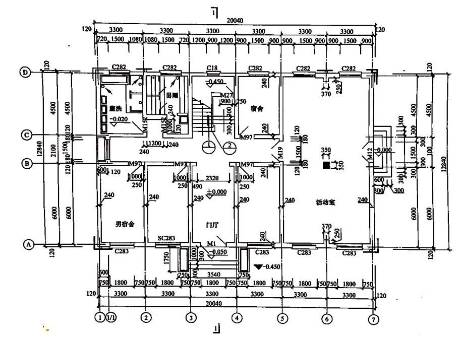
首页>试题列表>【背景】识读图示某宿舍底层平面图。根据背景资料,回答下列1~4问题。
搜题
题目内容 (请给出正确答案)
[案例题]

【背景】识读图示某宿舍底层平面图。根据背景资料,回答下列1~4问题。

A. 男宿舍的开间、进深尺寸正确的是()。(单选题)

B. 门厅的地坪为()。(单选题)

C. 不属于内部尺寸的有()。(多选题)

D. 从图中可知1-1剖面图的剖切位置为通过门厅、楼梯间剖切,投射方向为由东向西。(判断题)

查看答案
您好, 请在下方输入框内输入要搜索的题目:
搜题
更多“【背景】识读图示某宿舍底层平面图。根据背景资料,回答下列1~4问题。”相关的问题

第1题

【背景】识读图示某宿舍底层平面图。根据背景资料,回答下列1~4问题。

A. 男宿舍的开间、进深尺寸正确的是()。(单选题)

B. 门厅的地坪为()。(单选题)

C. 不属于内部尺寸的有()。(多选题)

D. 从图中可知1-1剖面图的剖切位置为通过门厅、楼梯间剖切,投射方向为由东向西。(判断题)

点击查看答案

第2题

【背景】某工程的双代号网络图如图所示。根据背景资料,回答下列1-4问题。

A. D工作的最早完成时间是第()天。(单选题)

B. 该工程的关键线路是()。(单选题)

C. 关于双代号网络图的绘制规则,正确的有()。(多选题)

D. G工作的紧前工作只有E工作。(判断题)

点击查看答案

第3题

【背景】某工程时标网络计划如图所示。根据背景资料,回答下列1-4问题。

A. 木地板2的最早开始时间是()。(单选题)

B. 木地板2的自由时差为()。(单选题)

C. 顶墙涂料2的最迟完成时间是()。(单选题)

D. 顶墙涂料3没有波形线,即没有时差,因此它是关键工作。(判断题)

点击查看答案

第4题

【背景】识读图示KL2梁结构施工图的标注内容,回答下列1~4问题。

A. 该框架梁第一跨跨中上部受力钢筋的配置正确的是()。(单选题)

B. 该框架梁第二跨跨中下部受力钢筋的配置正确的是()。(单选题)

C. 关于该框架梁的配筋说法正确是()。(多选题)

D. 该框架梁第一跨左支座上部受力钢筋为2根25mm+2根22mm,其中2根25mm的钢筋为角筋。(判断题)

点击查看答案

第5题

【背景】某住宅工程,工程竣工后,建设单位对竣工图进行了资料验收。根据背景资料,回答下列1-4问题。

A. 竣工图是工程竣工档案的()部分。

B. 竣工图图纸折叠时,图签及竣工图章应露在()。

C. 竣工图按绘制方法包括()。

D. 利用电子版施工图改绘的竣工图,竣工图的比例应与原施工图大一倍。

点击查看答案

第6题

【背景】识读钢柱柱头构造,回答下列1~4问题。

A. 钢柱头顶板与柱焊接并与梁用()相连。(单选题)

B. 相邻梁之间留有间隙并用夹板和()相连。(单选题)

C. 抵抗侧力的框架和梁-柱节点的抗弯连接应采用()方案。(单选题)

D. 在梁端增加了带突缘的支承加劲肋的底部刨平,顶紧于柱顶板。同时在柱顶板之下腹板两侧应设置加劲肋。(判断题)

点击查看答案

第7题

用Autocad软件绘制如图建筑立面窗:55-Q-1。根据背景资料,回答下列1~4问题。

A. 阵列命令用()图标表示。(单选题)

B. 采用阵列命令绘制本图形时,错误的是()。(单选题)

C. 阵列命令含有()几种阵列方式。(多选题)

D. 只采用阵列命令既可以完整的绘制本图形。(判断题)

点击查看答案

第8题

用Autocad软件绘制了1张建筑图并打印。根据背景资料,回答下列1~4问题。

A. 输入()执行打印命令。(单选题)

B. 打印图形时不能设置的打印比例是()。(单选题)

C. 在打印对话框中可以进行()设置。(多选题)

D. A2号图的图纸尺寸为594mm×420mm。(判断题)

点击查看答案

第9题

用Autocad软件绘制了1张建筑施工图并打印。根据背景资料,回答下列1~4问题。

A. 输入()执行打印命令。

B. 打印图形时,在打印对话框的打印比例中除自定义外没有()的比例选项。

C. 在打印对话框中可以进行()设置。

D. A2号图的图纸尺寸为594mm×420mm。

点击查看答案

第10题

【背景】某房地产公司的资料员了解计算机系统基本工作原理。根据背景资料,回答下列1~4问题。

A. 冯·诺依曼计算机工作原理的设计思想是()。

B. 程序和数据在计算机中以()形式存储。

C. 下列单位中,属于计算机存储单位的有()。

D. 计算机存储、处理和传递的数据长度成为字长,字长决定了计算机性能。

点击查看答案

第11题

【背景】某装配式单层工业厂房,预制列柱构件拟采用履带式起重机吊装。根据背景资料,回答下列1-4问题。

A. 1.在确定起重机开行路线后,根据现场情况及起重半径,其吊装各柱的(),应以各柱基杯口中心为圆心,以起重半径为半径画弧的交点来确定。

B. 2.吊装预制列柱时,柱的()应以柱脚中心为圆心,以柱脚至绑扎点的距离为半径作弧与以停机点为圆心,以起重半径为半径画弧的交点来确定。

C. 3.采用一点绑扎斜吊柱子时,需根据选用起重机型号对()等起吊参数进行计算。

D. 4.柱子的吊装点位置应根据柱子尺寸,柱脚中心及绑扎点作出的柱子的中心线来确定。

点击查看答案

第12题

【背景】某员工要打印幻灯片,所要掌握的powerpoint中的打印功能。根据背景资料,回答下列1~4问题。

A. 打印演示文稿的时候,可以选择不同的打印方式。点击PowerPoint的【Office按钮】,在下拉菜单中选择()命令。

B. PowerPoint中,Office对话框中可以选择打印的内容有()种。

C. 关于PowerPoint中幻灯片的打印,说法正确的有()。

D. PowerPoint打印时,在Office对话框中设置打印的范围以及打印的份数。

点击查看答案

第13题

【背景】某员工要打印幻灯片,所要掌握的powerpoint中的打印功能。根据背景资料,回答下列1~4问题。

A. 打印演示文稿的时候,可以选择不同的打印方式。点击PowerPoint的【Office按钮】,在下拉菜单中选择()命令。

B. PowerPoint中,Office对话框中可以选择打印的内容有()种。

C. 关于PowerPoint中幻灯片的打印,说法正确的有()。

D. PowerPoint打印时,在Office对话框中设置打印的范围以及打印的份数。

点击查看答案

第14题

某住宅工程,工程竣工后,建设单位对竣工图进行了资料验收。根据背景资料,回答下列1-4问题。

A. 竣工图是工程竣工档案的()部分。

B. 竣工图图纸折叠时,图签及竣工图章应露在()。

C. 竣工图按绘制方法包括()。

D. 利用电子版施工图改绘的竣工图,竣工图的比例应与原施工图大一倍。

点击查看答案

第15题

商业批发楼第17层正在浇筑混凝土。根据背景资料,回答下列1-4问题。

A. 关于fcu,k,表达正确的是()。

B. 在混凝土强度的检验评定中,按规定可以采用统计方法评定的是()。

C. 下列混凝土抗压强度试块中,属于非标准试件的是()。

D. 案例中可以不留同条件养护试块。

点击查看答案

第16题

某地下防水工程采用外防外贴法施工。根据背景资料,回答下列1~4问题。

A. 地下防水工程材料进场后,应进行的后续工作正确的是()。

B. 案例中,地下防水工程隐蔽验收,实际发生项目正确的是()。

C. 地下卷材防水层应采用()防水卷材。

D. 地下防水材料检查数量按进场的批次和产品的抽样检验方案确定。

点击查看答案

第17题

某安装公司资料员,对资料软件表格页面进行修改调整。根据背景资料,回答下列1~4问题。

A. 用户可以任意合并组合、拆分,改变行高、列宽,输入文字,加上边框,画线等。表格定义完后,必须保存为表样,用户也可以()已经存在的自定义表样。

B. 在资料当中有些表的统计、评定涉及计算。用户在填写完基本数据后,程序会自动计算。并呈现为()。

C. 通过()可以有效地保障计算机系统安全和数据安全。

D. 进入修改状态后,用户可以在当前表单上追加一页。“加一页"就是使一个表单中包含多个表页,但是打印时,无需一页一页打印。

点击查看答案

第18题

【背景】某员工制作一张个人简历表格,所要掌握的Word的表格功能。根据背景资料,回答下列1-4问题。

A. 在WORD编辑状态下,若光标位于表格外右侧的行尾处,按ENTER(回车)键,结果()。

B. 在Word中下列关于表格操作的叙述中不正确的是()。

C. 在【表格工具】的【设计】中,能够方便地设置表格样式,能调整边框的(),还能设置表格的底纹。

D. 在【表格工具】的【格式】中,能设置表格的属性,绘制斜线表头,插入或删除行列,合并或拆分单元格,调整单元格的大小,设置表格内文字的对齐方式等。

点击查看答案

第19题

某中学教学楼工程工程完工后,竣工图的编制单位对竣工图资料进行了审核。根据背景资料,回答下列1~4问题。

A. 竣工图的编制单位应是()。

B. 竣工图编制完成以后,()应协助竣工图编制单位检查编制情况。

C. 中学教学楼工程的竣工图应与()相符合。

D. 检查竣工图纸叠情况时,发现是先沿标题栏的短边方向以W形折叠的。

点击查看答案

第20题

某小区域进行地形图测绘,使用全站仪进行控制网的外业施测。根据背景资料,回答下列1~4问题。

A. 全站仪的安置包括()。

B. 全站仪地形图测绘属于测量学哪项测量任务()。

C. 下列哪些选项属于全站仪功能()。

D. 全站仪可以进行水平角置0。

点击查看答案

第21题

某小区域进行地形图测绘,使用全站仪进行控制网的外业施测。根据背景资料,回答下列1~4问题。

A. 全站仪的安置包括()。

B. 全站仪地形图测绘属于测量学哪项测量任务()。

C. 下列哪些选项属于全站仪功能()。

D. 全站仪可以进行水平角置0。

点击查看答案

第22题

某小区域进行地形图测绘,使用全站仪进行控制网的外业施测。根据背景资料,回答下列1一4问题。

A. 【单选题】全站仪的安置包括()。

B. 【单选题】全站仪地形图测绘属于测量学哪项测量任务(),

C. 【多选题】下列哪些选项属于全站仪功能()。

D. 【判断题】全站仪可以进行水平角置0.

点击查看答案

第23题

某小区域进行地形图测绘,使用全站仪进行控制网的外业施测。根据背景资料,回答下列1~4问题。

A. 全站仪的安置包括()。(单选题)

B. 全站仪地形图测绘属于测量学哪项测量任务()。(单选题)

C. 下列哪些选项属于全站仪功能()。(多选题)

D. 全站仪可以进行水平角置0。(判断题)

点击查看答案

第24题

【背景】某员工制作一个演示文稿对幻灯片动画设置时,所要掌握的powerpoint中的动画功能。根据背景资料,回答下列1~4问题。

A. PowerPoint的自定义动画包括()类。

B. 在没有安装Office系统的计算机上不能正常播放演示文稿()可解决这个问题。

C. PowerPoint的自定义动画正确的有()。

D. 当幻灯片的设计效果不能满足演示需求时,要加入动画设计,并根据实际需要设置动画效果。

点击查看答案

第25题

【背景】某工程为一栋四单元六层混合结构住宅带地下室,建筑面积4596m2,屋面保温材料选用保温蛭石板,防水层选用4mm厚SBS改性油毡,其劳动量一览表如图所示。根据背景资料,回答下列1-4问题。

A. 4、“楼地面面层”施工过程属于()施工阶段。(多选题)

B. 1、本工程屋面施工时可以采用平行施工的组织方式。(判断题)

C. 2、屋面找平层完成后需有一段养护和干燥的时间,方可进行防水层施工。(判断题)

D. 3、屋面工程施工计划应与其他分部工程施工计划有机搭接,形成单位工程施工进度计划。(判断题)

点击查看答案

第26题

【背景】某工程为一栋四单元六层混合结构住宅带地下室,建筑面积4596㎡,屋面保温材料选用保温蛭石板,防水层选用4mm厚SBS改性油毡,其劳动量一览表如图所示。根据背景资料,回答下列1-4问题。

A. 4、“楼地面面层”施工过程属于()施工阶段。

B. 1、本工程屋面施工时可以采用平行施工的组织方式。(判断题)

C. 2、屋面找平层完成后需有一段养护和干燥的时间,方可进行防水层施工。(判断题)

D. 3、屋面工程施工计划应与其他分部工程施工计划有机搭接,形成单位工程施工进度计划。(判断题)

点击查看答案

第27题

某项目资料员使用资料管理软件,进行资料收集整理工作。根据背景资料,回答下列1~4问题。

A. 加密文件软件设置了加密文件功能。用户可根据需要对工程项目文件进行加密。点取【文件】菜单,选择()。在弹出的对话框输入密码并确认,完成文件加密。

B. 每个资料记录是一个文件,可以用本软件打开。方法是()装入表格文件后,还可以修改并保存。

C. 工程资料管理软件技术资料组卷单位包括()。

D. 工程资料管理软件安装完成后系统默认以管理员身份admin登录,密码为空。进去后可以修改密码,建立不同的用户,并赋予不同的权限。

点击查看答案

第28题

某办公楼工程,在工程竣工后,竣工图由建设单位指定设计单位编制。根据背景资料,回答下列1-4问题。

A. 当图纸()时,应重新绘制竣工图。

B. 利用施工图蓝图改绘的竣工图的要求说法正确的是()。

C. 竣工图的作用以下说法正确的是()。

D. 利用电子版施工图改绘的竣工图,竣工图的比例应与原施工图一致。

点击查看答案

第29题

【背景】某公司承接某工程A3号楼工作,工程进行到2016年3月底,基础工程基本完成。试编制4月份施工进度计划。根据背景资料,回答下列1-4问题。

A. 1、月施工进度计划是施工企业统一计划体系中的()。(单选题)

B. 4、下列工作内容中,属于施工进度计划检查工作内容的有()。(多选题)

C. 2、施工作业计划是以实现企业施工计划为目的具体执行计划。(判断题)

D. 3、施工作业计划内容不包括提高劳动生产率的措施和节约措施。(判断题)

点击查看答案

第30题

某五层砖砌体,基础已施工完毕,现进行墙体施工测量工作。根据背景资料,回答下列1~4问题。

A. 一层墙面装修时,应在墙上测设出()m的水平标高线作为标高控制依据。

B. 三层墙身砌筑时,可用()将首层墙面上的标志轴线投测到施工楼层上。

C. 第四层标高传递可以采用()。

D. 在墙身皮数杆上根据设计尺寸,按砖和灰缝的厚度画线,并标明门、窗、过梁、楼板等的标高位置。杆上注记从±0.000向上增加。

点击查看答案

第31题

某五层砖砌体,基础已施工完毕,现进行墙体施工测量工作。根据背景资料,回答下列1~4问题。

A. 一层墙面装修时,应在墙上测设出()m的水平标高线作为标高控制依据。

B. 三层墙身砌筑时,可用()将首层墙面上的标志轴线投测到施工楼层上。

C. 第四层标高传递可以采用()。

D. 在墙身皮数杆上根据设计尺寸,按砖和灰缝的厚度画线,并标明门、窗、过梁、楼板等的标高位置。杆上注记从±0.000向上增加。

点击查看答案

第32题

某五层砖砌体,基础已施工完毕,现进行墙体施工测量工作。根据背景资料,回答下列1~4问题。

A. 【单选题】一层墙面装修时,应在墙上测设出()m的水平标高线作为标高控制依据。

B. 【单选题】三层墙身砌筑时,可用()将首层墙面上的标志轴线投测到施工楼层上。

C. 【多选题】第四层标高传递可以采用()。

D. 【判断题】在墙身皮数杆上根据设计尺寸,按砖和灰缝的厚度画线,并标明门、窗、过梁、楼板等的标高位置。杆上注记从±0.000向上增加。

点击查看答案

第33题

某五层砖砌体,基础已施工完毕,现进行墙体施工测量工作。根据背景资料,回答下列1~4问题。

A. 一层墙面装修时,应在墙上测设出()m的水平标高线作为标高控制依据。(单选题)

B. 三层墙身砌筑时,可用()将首层墙面上的标志轴线投测到施工楼层上。(单选题)

C. 第四层标高传递可以采用()。(多选题)

D. 在墙身皮数杆上根据设计尺寸,按砖和灰缝的厚度画线,并标明门、窗、过梁、楼板等的标高位置。杆上注记从±0.000向上增加。(判断题)

点击查看答案

第34题

某房地产公司的资料员了解计算机系统基本工作原理。根据背景资料,回答下列1~4问题。

A. 冯诺依曼计算机工作原理的设计思想是()。

B. 程序和数据在计算机中以()形式存储。

C. 下列单位中,属于计算机存储单位的有()。

D. 计算机存储、处理和传递的数据长度成为字长,字长决定了计算机性能。

点击查看答案

第35题

【背景】某工程为一栋三单元六层混合结构住宅带地下室,建筑面积4286㎡,基础为1m厚换土垫层,30mm厚混凝土垫层上做砖砌条形基础,其劳动量一览表如图所示。根据背景资料,回答下列1-4问题。

A. 该工程的基础工程流水施工中()是主导施工过程?(单选题)

B. 若基础工程在平面上划分两个施工段组织流水施工,砌砖基础及基础墙采用两班制,每班安排20人施工,则流水节拍为()天。(单选题)

C. 编制施工进度计划时,计算工程量应注意以下事项()。(多选题)

D. 机械挖土及素土压实垫层采用机械施工,为加快进度,也应组织流水施工。(判断题)

点击查看答案

第36题

某装配式单层工业厂房,预制列柱构件拟采用履带式起重机吊装。根据背景资料,回答下列1-4问题。

A. 在确定起重机开行路线后,根据现场情况及起重半径,其吊装各柱的(),应以各柱基杯口中心为圆心,以起重半径为半径画弧的交点来确定。

B. 吊装预制列柱时,柱的()应以柱脚中心为圆心,以柱脚至绑扎点的距离为半径作弧与以停机点为圆心,以起重半径为半径画弧的交点来确定。

C. 采用一点绑扎斜吊柱子时,需根据选用起重机型号对()等起吊参数进行计算。

D. 柱子的吊装点位置应根据柱子尺寸,柱脚中心及绑扎点作出的柱子的中心线来确定。

点击查看答案

第37题

某建筑公司采购一批钢筋,准备进行楼板钢筋加工下料。根据背景资料,回答下列1~4问题。

A. 钢筋混凝土楼板采用HPB300钢筋,试验批量正确的是()。

B. 未经检验的钢筋()。

C. 下列关于钢筋验收说法正确的是()。

D. 施工单位必须按照工程设计要求、施工技术标准和合同约定,对建筑材料、建筑构配件、设备和商品混凝土进行检验,检验应当有书面记录和专人签字。

点击查看答案

第38题

【背景】识读图示KL2梁结构施工图的集中标注内容,回答下列1~4问题。集中标注:KL2(2A)300x650Φ8@100/200(2)2925G4ф10(-0.10()原位标注:2025+292269274925492569251/221492542916二西Φ8@100(2)。

A. 在图示集中标注中,300X650表示的意思是()。

B. 在图示集中标注中,2ф25表示的意思是()。

C. 关于(-0.10()的说法,正确的有()。

D. 梁的平面注写方式包括集中标注和原位标注,在施工时,以集中标注优先。

点击查看答案

第39题

一墙下条形基础沟槽深1.8m,垫层底宽1.6m,工作面20cm,放坡系数1:0.5,此项目考虑工作面及放坡。根据背景资料,回答下列1~4问题。

A. 该沟槽的上口宽度为()m。

B. 在《房屋建筑与装饰工程工程量计算规范》中,当土方开挖底长s3倍底宽,且底面积s150㎡,开挖深度为0.8m时,清单项应列为()。

C. 土石方开挖时,下列()应属于安全文明施工费。

D. 计算基础土方放坡时,应扣除放坡交叉处的重复工程量。()。

点击查看答案

第40题

对图[99-Q-1]中建筑物进行倾斜观测,建筑物的高度H=20m,经观测△B=0.060m,△A=0.080m。根据背景资料,回答下列1~4问题。

A. 该建筑物的总偏移值是()mm。

B. 该建筑物的倾斜率是()。

C. 关于该建筑物倾斜观测,正确的有()。

D. 倾斜率用tanα表示。

点击查看答案

第41题

对图[122-Q-1]中建筑物进行倾斜观测建筑物的高度H=20m,经观测∆B=0.060m,∆A=0.080m。根据背景资料,回答下列1一4问题。

A. 【单选题】该建筑物的总偏移值是()mm。

B. 【单选题】该建筑物的倾斜率是()。

C. 【多选题】关于该建筑物倾斜观测,正确的有()。

D. 【判断题】倾斜率用tana表示。

点击查看答案

第42题

对图[122-Q-1]中建筑物进行倾斜观测建筑物的高度H=20m,经观测∆B=0.060m,∆A=0.080m。根据背景资料,回答下列1一4问题。

A. 【单选题】该建筑物的总偏移值是()mm。

B. 【单选题】该建筑物的倾斜率是()。

C. 【多选题】关于该建筑物倾斜观测,正确的有()。

D. 【判断题】倾斜率用tana表示。

点击查看答案

第43题

某建筑公司新购入一批资料管理软件,进行现场验收测试功能。根据背景资料,回答下列1~4问题。

A. 用户单击()按钮修改签名或删除签名时,先输入密码。当用户需要在某一个单元签名时,也需要输入名称和密码。

B. 现在要求用户在软件中输入或通过下拉条选择人员名称;在打印时()隐藏人员名称,打印后要求相关人员手工签名。

C. 资料库提供了(),用户可以直接复制、粘贴,使用其中的内容。

D. 用户可以扩充修改该资料库,资料库实际是一个实用小工具,可以单独使用。

点击查看答案

第44题

五层砖砌体,基础已施工完毕,现进行墙体施工测量工作。根据背景资料,回答下列1~4问题。

A. 一层墙面装修时,应在墙上测设出()m的水平标高线作为标高控制依据。

B. 三层墙身砌筑时,可用()将首层墙面上的标志轴线投测到施工楼层上。

C. 第四层标高传递可以采用()。

D. 在墙身皮数杆上根据设计尺寸,按砖和灰缝的厚度画线,并标明门、窗、过梁、楼板等的标高位置。杆上注记从±0.000向上增加。

点击查看答案

第45题

某宿舍,5层,建筑面积2500㎡,砖混结构,抗震设防烈度为6度,该工程楼板为现浇整体式钢筋混凝土楼板。请根据背景资料,回答下列1-4题。

A. 【单选题】该工程中建筑外墙勒脚的高度至少应在()mm以上。

B. 【单选题】该工程中,楼梯的允许坡度范围为()。

C. 【多选题】现浇钢筋混凝土楼板主要有()。

D. 【判断题】砖混结构中,圈梁和构造柱能提高结构的整体抗震性能。

点击查看答案

第46题

某住宅小区1住宅楼工程,由某监理公司中标,承担本工程的监理工作。根据背景资料,回答下列1-4问题。

A. 下列资料中,属于监理资料组成的是()。

B. 监理管理资料属于()。

C. 下列资料中,属于监理管理资料的是()。

D. 工程暂停令属于监理管理资料。

点击查看答案

第47题

某员工制作一张个人简历表格,所要掌握的Word的表格功能。根据背景资料,回答下列1~4问题。

A. 表格编辑是Word中经常用到的对象,能够清晰地展现内容。选择()选项卡中的(),设置表格的行列数后形成表格。

B. 下列Word表格操作的叙述中,不正确的是()。

C. 在【表格工具】的【设计】中,能够方便地设置表格样式,能调整边框的(),还能设置表格的底纹。

D. 在【表格工具】的【格式】中,能设置表格的属性,绘制斜线表头,插入或删除行列,合并或拆分单元格,调整单元格的大小,设置表格内文字的对齐方式等。

点击查看答案

第48题

【背景】某高级中学六层框架教学综合楼工程,基坑土方开挖工程施工完毕。监理单位进行隐蔽工程验收。根据背景资料,回答下列1-4问题。

A. 房屋或构筑物施工过程中,对将被下一工序所封闭的分部、分项工程进行检查验收,被称为()。

B. 当隐蔽工程项目验收不合格,正确处理方法是()。

C. 基坑土方开挖工程施工完毕验槽的要点正确的有()。

D. “隐蔽工程验收”与“检验批验收”是相同的。

点击查看答案

第49题

某学校宿舍楼共5层,每层有寝室48间,每个寝室都带有独立的卫生间,施工过程中需要对卫生间防水进行检测。请根据背景资料,回答下列1~4问题。

A. 做蓄水试验时,蓄水时间不得少于()时。

B. 蓄水试验时,蓄水深度最低不低于()mm。

C. 防水工程蓄水检查的内容有()。

D. 应该对卫生间防水进行蓄水试验检查并且每个卫生间都应该检查。

点击查看答案

第50题

某5层住宅楼已完成现场定位工作,现进行测设细部轴线及引测轴线工作。根据背景资料,回答下列1~4问题。

A. 本工程引测轴线宜采用()。

B. 轴线控制桩一般设在轴线延长线上距开挖边线()m以外的地方。

C. 关于龙门板法,正确的有()。

D. 建筑物的放线是根据已定位的外墙轴线交点桩,详细测设其各轴线交点的位置,并引测至适宜位置做好标记。然后据此用白灰撒出基坑(槽)开挖边界线。

点击查看答案
下载安全员考试通APP
相关试题 全部 >
某公司承接某公寓工程,建筑面积约31225㎡,地下2层,为人防和车库,地上十三层,1~3层为公共建筑,4层以上为住宅。基础类型为带柱帽式筏形基础,主体为框架-剪力墙结构。结构跨度大,结构形式复杂,钢筋采用HPB235级和HRB335级,钢筋接头采用绑扎、气压焊,地下混凝土采用C35级,地上混凝土采用C30级和C25级。根据背景资料,回答下列1~4问题。 某施工单位参加综合楼工程的投标,根据业主提供的施工图纸和工程量清单进行报价并中标,该工程采用固定单价合同,施工中,工程量清单给出的基础垫层工程量为180m³,而根据施工图纸计算的垫层工程量为185m³。根据背景资料,回答下列1~4问题。 某住宅小区共6栋住宅楼,均为地下两层,地上20层。总建筑面积约10万㎡,其中2层以下结构采用现浇剪力墙结构,3层及以上采用装配整体式混凝土剪力墙结构,构件之间的节点采用现场二次浇筑的办法。楼面采用PK预应力混凝土叠合板,外墙采用预制夹芯保温板,室内承重墙采用预制剪力墙板、内墙为整体轻质墙板,楼梯为预制楼梯。总工期200天。根据背景资料,回答下列4个问题。 某雨水量较小地区的办公楼,采用墙柱混合承重方式,室外设散水、台阶和勒脚,墙身做防潮处理,正立面采用玻璃幕墙。根据下列资料,回答下列问题。 识读钢梁钢柱接头,回答下列1~4问题。 某屋面工程,采用改性沥青防水卷材防水,第21层屋面有冷却塔,屋面上风管穿过幕墙,风管与出屋面的通风道连接。根据背景资料,回答下列1~4问题。 【背景】识读图示KL2梁结构施工图的集中标注内容,回答下列1~4问题。集中标注:KL2(2A)300x650Φ8@100/200(2)2925G4ф10(-0.10()原位标注:2025+292269274925492569251/221492542916二西Φ8@100(2)。 某装配式混凝土结构工程施工,施工单位安排如下:生产经理对PC施工质量、安全、协调总负责。该工程叠合梁的跨度为4.5米,在叠合梁落位后检查,发现叠合梁有偏移。根据背景资料,回答下列四个问题。 建筑图例一般包括建筑构配件、卫生设备、建筑材料等图例,其使用是为了作图方便。 施工层标高的传递,宜采用悬挂钢尺代替水准尺的水准测量方法进行。
重置密码
账号:
旧密码:
新密码:
确认密码:
确认修改
购买搜题卡查看答案
购买前请仔细阅读《购买须知》
请选择支付方式
微信支付
支付宝支付
选择优惠券
优惠券
请选择
点击支付即表示你同意并接受《服务协议》《购买须知》
立即支付
搜题卡使用说明

1. 搜题次数扣减规则:

功能 扣减规则
基础费
(查看答案)
加收费
(AI功能)
文字搜题、查看答案 1/每题 0/每次
语音搜题、查看答案 1/每题 2/每次
单题拍照识别、查看答案 1/每题 2/每次
整页拍照识别、查看答案 1/每题 5/每次

备注:网站、APP、小程序均支持文字搜题、查看答案;语音搜题、单题拍照识别、整页拍照识别仅APP、小程序支持。

2. 使用语音搜索、拍照搜索等AI功能需安装APP(或打开微信小程序)。

3. 搜题卡过期将作废,不支持退款,请在有效期内使用完毕。

请使用微信扫码支付(元)
订单号:
遇到问题请联系在线客服
请不要关闭本页面,支付完成后请点击【支付完成】按钮
遇到问题请联系在线客服
恭喜您,购买搜题卡成功 系统为您生成的账号密码如下:
重要提示: 请勿将账号共享给其他人使用,违者账号将被封禁。
发送账号到微信 保存账号查看答案
怕账号密码记不住?建议关注微信公众号绑定微信,开通微信扫码登录功能
警告:系统检测到您的账号存在安全风险

为了保护您的账号安全,请在“上学吧”公众号进行验证,点击“官网服务”-“账号验证”后输入验证码“”完成验证,验证成功后方可继续查看答案!

- 微信扫码关注上学吧 -
警告:系统检测到您的账号存在安全风险
抱歉,您的账号因涉嫌违反上学吧购买须知被冻结。您可在“上学吧”微信公众号中的“官网服务”-“账号解封申请”申请解封,或联系客服
- 微信扫码关注上学吧 -
请用微信扫码测试
选择优惠券
确认选择
谢谢您的反馈

您认为本题答案有误,我们将认真、仔细核查,如果您知道正确答案,欢迎您来纠错

找答案