• 首页
  • 安卓App
    安卓App二维码

    扫码下载安卓App

  • 苹果App
    苹果App二维码

    扫码下载苹果App

  • 微信小程序
    微信小程序二维码

    扫码使用小程序

  • 客服微信
    微信客服二维码

    扫码添加客服微信

  • 登录
  • 注册
[切换]
  • 首页
  • 找答案
  • 题库
  • APP
选择地区 ×
选择专业 ×
当前选择地区:北京 更改地区
2025年11月14日湖北安全员(C2证)模拟真题-安全员考试通
单选题
1 高处作业时,凡遇雨、冰、霜、雪时均应()。
添加笔记 (0条)
收藏
纠错
标记
2 物料提升机的吊笼的两侧应设置高度不小于()cm的栏杆。
添加笔记 (0条)
收藏
纠错
标记
3 安全防护设施的验收,应具备施工组织设计及有关验算数据、安全防护设施验收记录、安全防护设施()等资料。
添加笔记 (0条)
收藏
纠错
标记
4 出现什么的情况,吊钩应报废()。
添加笔记 (0条)
收藏
纠错
标记
5 以下关于施工升降机说法正确的是()。
添加笔记 (0条)
收藏
纠错
标记
6 严禁现场改制物料提升设备,因工程需要确需使用自制的起吊重量超过()起重设备,而且起重平台上有人员作业时,应首先向当地建设主管部门报告,制定专项方案且经专家论证,报当地建设主管部门备案后严格按方案执行。
添加笔记 (0条)
收藏
纠错
标记
7 塔式起重机起吊前,应对()进行检查,确认合格后方可起吊;安全装置失灵时,不得起吊。
添加笔记 (0条)
收藏
纠错
标记
8 作业结束后应将施工升降机返回()层停放,将各控制开关拨到零位,切断电源,锁好开关箱,吊笼门和地面防护围栏门。
添加笔记 (0条)
收藏
纠错
标记
9 物料提升机超载试验应取额定荷载的()%(按5%逐级加载),荷载在吊笼内均匀布置,做上升、下降、变速、制动(不做坠落试验)等动作;
添加笔记 (0条)
收藏
纠错
标记
10 临时用电使用与维护中,检查、维修时应正确穿戴()、手套,必须使用电工绝缘工具。
添加笔记 (0条)
收藏
纠错
标记
11 安装圈梁、阳台、雨篷及挑檐等模板时,其支撑()支搭在施工脚手架上。
添加笔记 (0条)
收藏
纠错
标记
12 既有建筑进行扩建、改建施工时,非施工区继续营业、使用和居住时,外脚手架搭设长度不应超过该建筑物外立面周长的()。
添加笔记 (0条)
收藏
纠错
标记
13 使用手持电动工具时,在()作业环境,应使用具有相应防护等级的工具。
添加笔记 (0条)
收藏
纠错
标记
14 文明施工要求在通道口设防护棚,且防护棚应为不小于()厚度的木板或两道相距50cm的竹笆。
添加笔记 (0条)
收藏
纠错
标记
15 对于必须在外侧立面的两端各设置一道剪刀撑的单、双排脚手架,剪刀撑应由底至顶连续设置,中间各道剪刀撑之间的净距不应大于()m。
添加笔记 (0条)
收藏
纠错
标记
16 架体高度()及以上悬挑式脚手架工程需要专家论证。
添加笔记 (0条)
收藏
纠错
标记
17 下列物品中,()是可燃品。
添加笔记 (0条)
收藏
纠错
标记
18 对于额定提升速度不超过()m/s的施工升降机,可采用瞬时式安全器,否则应采用渐进式安全器
添加笔记 (0条)
收藏
纠错
标记
19 搭设跨度超过()m的混凝土模板支撑工程属于超过一定规模的危大工程。
添加笔记 (0条)
收藏
纠错
标记
20 对于图示作业行为,管理人员做法错误的是()
添加笔记 (0条)
收藏
纠错
标记
21 图示现场最有可能发生的安全事故是()。
添加笔记 (0条)
收藏
纠错
标记
22 下图所示施工机具存在的主要安全隐患是()
添加笔记 (0条)
收藏
纠错
标记
23 根据下图所示,下列描述正确的是()
添加笔记 (0条)
收藏
纠错
标记
24 下图为某工地施工升降机安全防坠器失效,安全防坠器为施工升降机安全装置之一,安全防坠器检测标定有效期限为()。
添加笔记 (0条)
收藏
纠错
标记
25 如图所示,工人出入施工大门口,按《建筑施工安全检查标准》(JGJ59-2011)文明施工封闭管理条例规定,应该佩戴什么()?
添加笔记 (0条)
收藏
纠错
标记
26 图为附着式升降脚手架的电源、电缆及控制柜的开关箱,其设置说法正确的是?()
添加笔记 (0条)
收藏
纠错
标记
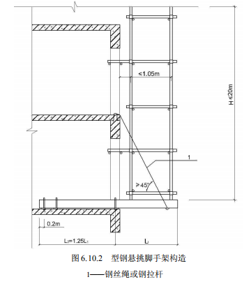
27 图中,根据建筑施工扣件式钢管脚手架安全技术规范内第6.10.2条规定,锚固型钢悬挑梁的U型钢筋拉环或锚固螺栓直径不宜小于()㎜
添加笔记 (0条)
收藏
纠错
标记
28 据图所示,找出存在的安全隐患()
添加笔记 (0条)
收藏
纠错
标记
29 下图中存在的主要隐患是什么?()
添加笔记 (0条)
收藏
纠错
标记
30 以下哪个部门负责易燃易爆危险品的安全监督管理工作,组织编制和协调相关部门实施易燃易爆危险品事故应急救援预案。()
添加笔记 (0条)
收藏
纠错
标记
31 停用()个月以上的建筑起重机械,应有停用记录。
添加笔记 (0条)
收藏
纠错
标记
32 施工现场可能对毗邻的建筑物和特殊作业环境造成损害的,建筑施工企业()采取安全防护林措施
添加笔记 (0条)
收藏
纠错
标记
33 生产经营单位制定或者修改有关安全生产的规章制度,应当听取()的意见。
添加笔记 (0条)
收藏
纠错
标记
34 生产经营单位应当具备的安全生产条件所必需的资金投入,由生产经营单位的决策机构、(),并对由于安全生产所必需的资金投入不足导致的后果承担责任。
添加笔记 (0条)
收藏
纠错
标记
35 生产经营单位从事生产经营活动应当有完备的()和操作规程。
添加笔记 (0条)
收藏
纠错
标记
36 任何单位或者个人对事故隐患或者安全生产违法行为,()向负有安全生产监督管理职责的部门报告或者举报。
添加笔记 (0条)
收藏
纠错
标记
37 建筑工程开工前,()应当按照国家有关规定向工程所在地县级以上人民政府建设行政主管部门申请领取施工许可证。
添加笔记 (0条)
收藏
纠错
标记
38 建设单位在申请办理安全监督手续时,应当提交危大工程清单及其()等资料。
添加笔记 (0条)
收藏
纠错
标记
39 根据《建筑工程安全生产管理条例》,国家对严重危及施工安全的工艺、设备、材料实行()。
添加笔记 (0条)
收藏
纠错
标记
40 《建设工程安全生产管理条例》规定,施工单位应当自施工起重机械和整体提升脚手架、模板等自升式架设设施(),向建设行政主管部门或者其他有关部门登记。
添加笔记 (0条)
收藏
纠错
标记
多选题
41 施工升降机作业前应重点检查下列项目,并应符合相应要求:()。
添加笔记 (0条)
收藏
纠错
标记
42 施工升降机吊笼内应有()。
添加笔记 (0条)
收藏
纠错
标记
43 塔式起重机在安装前和使用过程中,发现有下列情况之一的,不得安装和使用()
添加笔记 (0条)
收藏
纠错
标记
44 配电装置中的()、设置应符合规范要求
添加笔记 (0条)
收藏
纠错
标记
45 施工企业的工程项目部应根据企业安全生产管理制度,实施施工现场安全生产管理,应包括下列内容():
添加笔记 (0条)
收藏
纠错
标记
46 在脚手架作业层上进行()作业时,应采取防火措施,并应设专人监护。
添加笔记 (0条)
收藏
纠错
标记
47 爆破作业时,作业人员禁止穿戴易引起静电的衣物,禁止携带()等物品
添加笔记 (0条)
收藏
纠错
标记
48 直接夹紧柱模板的柱箍常使用()。
添加笔记 (0条)
收藏
纠错
标记
49 顶管法施工可分为:()。
添加笔记 (0条)
收藏
纠错
标记
50 纵向水平杆的对接接头应交错布置,具体要求是()
添加笔记 (0条)
收藏
纠错
标记
51 下列选项中属于建筑工程安全文明施工措施费用的是()。
添加笔记 (0条)
收藏
纠错
标记
52 根据《建设工程安全生产管理条例》,施工起重机械和整体提升脚手架、模板等自升式架设设施安装完毕后()。
添加笔记 (0条)
收藏
纠错
标记
53 《施工企业安全生产评价标准》关于企业市场行为评价的说法正确的有()。
添加笔记 (0条)
收藏
纠错
标记
54 《建设工程安全生产管理条例》规定,施工单位在使用施工起重机械和整体提升脚手架、模板等自升式架设设施前,应当组织有关单位进行验收,也可以委托具有相应资质的检验检测机构进行验收;使用承租的机械设备和施工机具及配件的,由()共同进行验收。
添加笔记 (0条)
收藏
纠错
标记
55 ()应当建立危险性较大的分部分项工程安全管理制度。
添加笔记 (0条)
收藏
纠错
标记
56 如图所示,存在的安全隐患为()。
添加笔记 (0条)
收藏
纠错
标记
57 如图所示附着式升降脚手架,限制荷载自控系统应具有哪些功能()?
添加笔记 (0条)
收藏
纠错
标记
58 图示现场存在的高处坠落安全隐患主要有()。
添加笔记 (0条)
收藏
纠错
标记
59 该图为某配电箱接地体的设置情况,在施工现场能作为接地体的材料有()
添加笔记 (0条)
收藏
纠错
标记
60 坑洞内的工人,可能发生()安全事故?
添加笔记 (0条)
收藏
纠错
标记
61 施工现场使用乙炔、氧气气瓶时,必须保持()完好。
添加笔记 (0条)
收藏
纠错
标记
62 建筑工地必须悬挂五牌一图,请问以下哪些是五牌一图的内容?
添加笔记 (0条)
收藏
纠错
标记
63 下图问题说法正确的是()。
添加笔记 (0条)
收藏
纠错
标记
64 针对下图说法错误的是?()
添加笔记 (0条)
收藏
纠错
标记
65 下图是某地铁车站主体结构基坑开挖期间施工图片,请识别图中存在的安全隐患()。
添加笔记 (0条)
收藏
纠错
标记
66 职工因工作遭受事故伤害或者患职业病进行治疗,享受工伤医疗待遇。下列费用中可以从工伤保险基金支付的有()。
添加笔记 (0条)
收藏
纠错
标记
67 施工总承包单位应当履行下列安全职责:
添加笔记 (0条)
收藏
纠错
标记
68 生产经营单位的主要负责人对本单位安全生产工作全面负责,主要职责有()
添加笔记 (0条)
收藏
纠错
标记
69 经过多年工程实践经验的总结,我国制定了一系列行之有效的安全生产基本规章制度,以下符合防止违章操作和事故发生的十项操作规定的选项为()。
添加笔记 (0条)
收藏
纠错
标记
70 根据相关法律法规,建筑施工企业不再具备安全生产条件的,安全生产许可证颁发管理机关发现应当()安全生产许可证。
添加笔记 (0条)
收藏
纠错
标记
00:00:27
暂停
休息一下...
继续做题
答题卡
0 / 70
单选题 (共40 题)
  • 1
  • 2
  • 3
  • 4
  • 5
  • 6
  • 7
  • 8
  • 9
  • 10
  • 11
  • 12
  • 13
  • 14
  • 15
  • 16
  • 17
  • 18
  • 19
  • 20
  • 21
  • 22
  • 23
  • 24
  • 25
  • 26
  • 27
  • 28
  • 29
  • 30
  • 31
  • 32
  • 33
  • 34
  • 35
  • 36
  • 37
  • 38
  • 39
  • 40
多选题 (共30 题)
  • 41
  • 42
  • 43
  • 44
  • 45
  • 46
  • 47
  • 48
  • 49
  • 50
  • 51
  • 52
  • 53
  • 54
  • 55
  • 56
  • 57
  • 58
  • 59
  • 60
  • 61
  • 62
  • 63
  • 64
  • 65
  • 66
  • 67
  • 68
  • 69
  • 70
未做
已做
标记
保存进度
交卷
提交纠错
请填入您发现的错误详情,或输入您对该题的评论或意见
您正在结束作答
您还有100道题未作答,是否确定交卷?
确定交卷 下次继续
警告:系统检测到您的账号存在安全风险

为了保护您的账号安全,请输入手机验证码后,完成身份验证。通过后方可继续刷题!

账号:
手机号:
短信验证码: 获取验证码
确认
若遇到问题,请 联系客服

试卷生成中,请等待

获取试卷失败

抱歉!

返回

你无该试卷的权限

购买题库
关于我们  |  免责声明  |  网站导航  |  帮助中心  |  联系我们
违法和不良信息举报/反馈/投诉邮箱:weilaiyunling@163.com
版权所有  ©2026 津ICP备2024020020号-1