• 首页
  • 安卓App
    安卓App二维码

    扫码下载安卓App

  • 苹果App
    苹果App二维码

    扫码下载苹果App

  • 微信小程序
    微信小程序二维码

    扫码使用小程序

  • 客服微信
    微信客服二维码

    扫码添加客服微信

  • 登录
  • 注册
[切换]
  • 首页
  • 找答案
  • 题库
  • APP
选择地区 ×
选择专业 ×
当前选择地区:北京 更改地区
2025年11月09日湖北安全员(C2证)历年真题-安全员考试通
单选题
1 机械作业时不宜在地下电缆或燃气管道等()半径范围内作业。
添加笔记 (0条)
收藏
纠错
标记
2 插入式、平板式振捣器的漏电保护器应采用防溅型产品,其额定漏电动作电流不应大于()。
添加笔记 (0条)
收藏
纠错
标记
3 在每天开工前和每次换班前,施工升降机司机应按使用说明书及()附录E的要求对施工升降机进行检查。
添加笔记 (0条)
收藏
纠错
标记
4 当立网用于龙门架、物料提升架及井架的封闭防护时,系绳间距不得大于()mm
添加笔记 (0条)
收藏
纠错
标记
5 施工现场内所有防雷装置的冲击接地电阻值不得大于()Ω。
添加笔记 (0条)
收藏
纠错
标记
6 停送电必须由()负责
添加笔记 (0条)
收藏
纠错
标记
7 挂篮行走速度不应超过()m/min。
添加笔记 (0条)
收藏
纠错
标记
8 当满堂支撑架立杆纵、横间距为0.9mX0.9m〜1.2mX1.2m时,加强型竖向剪刀撑应按纵、横向每()跨,剪刀撑宽度应为()跨。
添加笔记 (0条)
收藏
纠错
标记
9 扣件式钢管脚手架扣件螺栓拧紧扭力矩在()N﹒m之间。
添加笔记 (0条)
收藏
纠错
标记
10 冬期施工施工时,木工棚、库房、喷漆车间、油漆配料车间等场所不得用火炉取暖,周围()m内不得有明火作业。
添加笔记 (0条)
收藏
纠错
标记
11 由于雨季(汛期)施工持续时间较长,而且大雨、大风等恶劣天气具有突然性,因此,施工现场应按照要求提前编制雨季(汛期)施工方案,并编制雨季(汛期)施工(),做好雨季(汛期)施工的各项准备工作。
添加笔记 (0条)
收藏
纠错
标记
12 高大模板支撑系统拆除作业必须()进行。
添加笔记 (0条)
收藏
纠错
标记
13 施工单位在采用新技术、新工艺、新设备、新材料时,应当对()进行相应的安全生产教育培训。
添加笔记 (0条)
收藏
纠错
标记
14 负有安全生产监督管理职责的部门在监督检查中,应当互相配合,实行();确需分别进行检查的,应当互通情况。
添加笔记 (0条)
收藏
纠错
标记
15 对本区域安全生产其领导作用,建立健全安全生产工作协调机制的部门或机构是()。
添加笔记 (0条)
收藏
纠错
标记
16 单位和个人应当增强大气环境保护意识,采取()的生产和生活方式,自觉履行大气环境保护义务。
添加笔记 (0条)
收藏
纠错
标记
17 采用新结构、新材料、新工艺的建设工程和特殊结构的建设工程,设计单位应当在设计中提出保障施工作业人员安全和预防生产安全事故的()。
添加笔记 (0条)
收藏
纠错
标记
18 2021年国务院安全生产监督管理部门具体指哪个部门()。
添加笔记 (0条)
收藏
纠错
标记
19 《生产安全事故报告和调查处理条例》规定,事故报告应当及时、准确、完整,()和个人对事故不得迟报、漏报、谎报或者瞒报。
添加笔记 (0条)
收藏
纠错
标记
20 《建设工程安全生产管理条例》规定,勘察在勘察作业时,应当严格执行(),采取措施保证各类管线、设施和周边建筑物、构筑物的安全
添加笔记 (0条)
收藏
纠错
标记
21 ()全面负责施工现场人员进出管理,房屋建筑及市政基础设施工程施工现场必须实行封闭围墙(围挡)。
添加笔记 (0条)
收藏
纠错
标记
22 ()可以设定除限制人身自由、吊销营业执照以外的行政处罚。
添加笔记 (0条)
收藏
纠错
标记
23 下图为施工现场一电箱,其存在的临时用电的问题有()。
添加笔记 (0条)
收藏
纠错
标记
24 如图所示,为一配电箱,下列说法正确的是()。
添加笔记 (0条)
收藏
纠错
标记
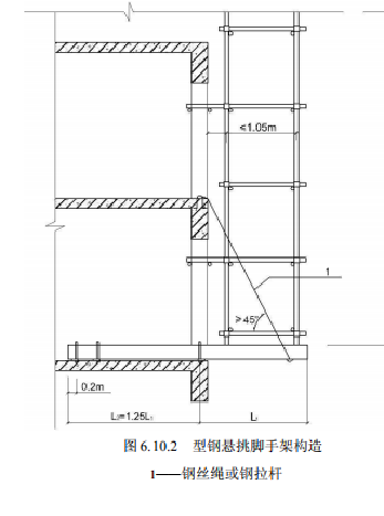
25 如图所示,一次悬挑脚手架高度不宜超过()m。
添加笔记 (0条)
收藏
纠错
标记
26 图中,正确的做法是()
添加笔记 (0条)
收藏
纠错
标记
27 如图所示,卸料平台有最大安全隐患的是?()
添加笔记 (0条)
收藏
纠错
标记
28 在高温天气期间,用人单位()按照相关规定,根据生产特点和具体条件,合理安排工作时间。
添加笔记 (0条)
收藏
纠错
标记
29 使用登记机关应当在()办理建筑起重机械拆卸告知手续时,注销建筑起重机械使用登记证明。
添加笔记 (0条)
收藏
纠错
标记
30 施工单位应在施工现场入口处、施工起重机械、临时用电设施、脚手架、出入通道口、楼梯口、电梯井口、孔洞口、桥梁口、隧道口、基坑边沿、爆破物及有害危险气体和液体存放处等危险部位,设置明显的()。
添加笔记 (0条)
收藏
纠错
标记
31 施工单位起重机械和整体提升脚手架、模板等自升式架设设施安装、拆卸单位未编制拆装方案,制定安全施工措施的,责令限期改正,处()。
添加笔记 (0条)
收藏
纠错
标记
32 施工单位对列入建设工程概算的安全作业环境及安全施工措施所需费用,应当用于施工安全防护用具及设施的采购和更新、安全施工措施的落实、安全生产条件的改善,()挪作他用。
添加笔记 (0条)
收藏
纠错
标记
33 生产经营单位的()具有组织制定并实施本单位的生产事故应急救援预案的职责。
添加笔记 (0条)
收藏
纠错
标记
34 设计单位应当考虑施工安全操作和防护的需要,对涉及施工安全的重点部位和环节在设计文件中注明,并对()提出指导意见。
添加笔记 (0条)
收藏
纠错
标记
35 就是要求在进行生产和其他工作时把安全工作放在一切工作的首要位置是指()。
添加笔记 (0条)
收藏
纠错
标记
36 建筑施工企业应当依法为()参加工伤保险缴纳工伤保险费。
添加笔记 (0条)
收藏
纠错
标记
37 公民因行政机关违法给予行政处罚受到损害的,有权依法提出()。
添加笔记 (0条)
收藏
纠错
标记
38 根据《中华人民共和国特种设备安全法》规定,组织事故调查的部门应当将事故调查报告报本级人民政府,并报()人民政府负责特种设备安全监督管理的部门备案。
添加笔记 (0条)
收藏
纠错
标记
39 根据“安管人员”相关考核规定,对考核不合格的,应当通过“安管人员”()通知本人并说明理由。
添加笔记 (0条)
收藏
纠错
标记
40 ()批准延期、分期缴纳罚款的,申请()强制执行的期限,自暂缓或者分期缴纳罚款期限结束之日起计算。
添加笔记 (0条)
收藏
纠错
标记
多选题
41 如图所示,下列说法正确的是()。
添加笔记 (0条)
收藏
纠错
标记
42 下列哪些是塔式起重机拆装工艺编制的主要依据?()
添加笔记 (0条)
收藏
纠错
标记
43 关于乙炔瓶的使用,正确选项包括()。
添加笔记 (0条)
收藏
纠错
标记
44 施工升降机安装、拆卸,监理单位进行的工作应包括下列内容:()
添加笔记 (0条)
收藏
纠错
标记
45 在施工升降机投入使用前由专业技术人员对其进行检查,检查范围应包括()等。
添加笔记 (0条)
收藏
纠错
标记
46 物料提升机空载试验应符合下列要求:()
添加笔记 (0条)
收藏
纠错
标记
47 安全管理目标应包括():
添加笔记 (0条)
收藏
纠错
标记
48 爬模装置包括()
添加笔记 (0条)
收藏
纠错
标记
49 安全等级为Ⅰ级的门式满堂支撑架,垂直于门架平面的水平加固杆应按()各设置一道。
添加笔记 (0条)
收藏
纠错
标记
50 施工现场应建立脚手架工程施工()和()制度
添加笔记 (0条)
收藏
纠错
标记
51 基坑施工时,如在()2米范围内挖土时,应采取安全保护措施,并应设专人监护。
添加笔记 (0条)
收藏
纠错
标记
52 施工电梯及物料提升机垂直运输接料平台应设置下列哪些设施?()
添加笔记 (0条)
收藏
纠错
标记
53 文明施工检查评定一般项目应包括()等。
添加笔记 (0条)
收藏
纠错
标记
54 防治大气污染,应对()等大气污染物和温室气体实施协同控制。
添加笔记 (0条)
收藏
纠错
标记
55 《施工企业安全生产评价标准》中企业市场行为评分表中评定项目包括()
添加笔记 (0条)
收藏
纠错
标记
56 据图所示附着式升降脚手架,下列说法正确的是()
添加笔记 (0条)
收藏
纠错
标记
57 如图所示附着式升降脚手架,存在的安全隐患有哪些()。
添加笔记 (0条)
收藏
纠错
标记
58 如图所示钢管附着式升降脚手架,存在哪些问题?()
添加笔记 (0条)
收藏
纠错
标记
59 如图所示,现场作业环境的不利因素是()。
添加笔记 (0条)
收藏
纠错
标记
60 移动式操作平台在建筑施工现场十分常见,具有搭设简单,拆装方便等优点,下列关于移动式操作平台的说法正确的是()。
添加笔记 (0条)
收藏
纠错
标记
61 如图所示基坑工程的坡边,描述正确的是?()
添加笔记 (0条)
收藏
纠错
标记
62 下图配电箱使用主要存在什么问题?()
添加笔记 (0条)
收藏
纠错
标记
63 看下图二级箱中漏保主要隐患描述正确的是()。
添加笔记 (0条)
收藏
纠错
标记
64 下列适用《建设工程安全生产管理条例》的有()。
添加笔记 (0条)
收藏
纠错
标记
65 生产经营单位的主要负责人未履行本法规定的安全生产管理职责,导致发生生产安全事故的,由安全生产监督管理部门依照下列规定处以罚款:()
添加笔记 (0条)
收藏
纠错
标记
66 建筑施工企业对安全检查中发现的问题和隐患,应()组织整改,并跟踪复查。
添加笔记 (0条)
收藏
纠错
标记
67 根据《中华人民共和国消防法》规定机关、团体、()等单位以及()根据需要,建立志愿消防队等多种形式的消防组织,开展群众性自防自救工作。
添加笔记 (0条)
收藏
纠错
标记
68 根据《建筑起重机械安全监督管理规定》,有下列情形之一的建筑起重机械,不得出租、使用()。
添加笔记 (0条)
收藏
纠错
标记
69 采用新结构、新材料、新工艺的建设工程,设计单位应当在设计中提出()的措施建议。
添加笔记 (0条)
收藏
纠错
标记
70 企业事业单位和其他生产经营者有下列行为之一,尚不构成犯罪的,除依照有关法律法规规定予以处罚外,由县级以上人民政府环境保护主管部门或者其他有关部门将案件移送公安机关,对其直接负责的主管人员和其他直接责任人员,处十日以上十五日以下拘留;情节较轻的,处五日以上十日以下拘留:
添加笔记 (0条)
收藏
纠错
标记
00:00:27
暂停
休息一下...
继续做题
答题卡
0 / 70
单选题 (共40 题)
  • 1
  • 2
  • 3
  • 4
  • 5
  • 6
  • 7
  • 8
  • 9
  • 10
  • 11
  • 12
  • 13
  • 14
  • 15
  • 16
  • 17
  • 18
  • 19
  • 20
  • 21
  • 22
  • 23
  • 24
  • 25
  • 26
  • 27
  • 28
  • 29
  • 30
  • 31
  • 32
  • 33
  • 34
  • 35
  • 36
  • 37
  • 38
  • 39
  • 40
多选题 (共30 题)
  • 41
  • 42
  • 43
  • 44
  • 45
  • 46
  • 47
  • 48
  • 49
  • 50
  • 51
  • 52
  • 53
  • 54
  • 55
  • 56
  • 57
  • 58
  • 59
  • 60
  • 61
  • 62
  • 63
  • 64
  • 65
  • 66
  • 67
  • 68
  • 69
  • 70
未做
已做
标记
保存进度
交卷
提交纠错
请填入您发现的错误详情,或输入您对该题的评论或意见
您正在结束作答
您还有100道题未作答,是否确定交卷?
确定交卷 下次继续
警告:系统检测到您的账号存在安全风险

为了保护您的账号安全,请输入手机验证码后,完成身份验证。通过后方可继续刷题!

账号:
手机号:
短信验证码: 获取验证码
确认
若遇到问题,请 联系客服

试卷生成中,请等待

获取试卷失败

抱歉!

返回

你无该试卷的权限

购买题库
关于我们  |  免责声明  |  网站导航  |  帮助中心  |  联系我们
违法和不良信息举报/反馈/投诉邮箱:weilaiyunling@163.com
版权所有  ©2025 津ICP备2024020020号-1